Bronsringsgatan 13
- Boarea103 kvm
- Rum9 rok
Välkommen till en rymlig familjevilla om totalt 276 kvm.
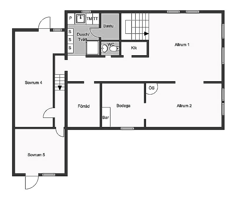
Välplanerad, rymlig villa med fint läge i Kannebäck. Ytan om 276 kvm med 9 rum - fördelad på 3 allrum och 5 sovrum. Sovrum 4 och 5 har egna ingångar. Här finns möjlighet till extra lägenhet eller separat verksamhet.
Insynsskyddad trädgård i sydväst läge, med uteplatser och poolområde. Barnvänligt läge, minimalt med trafik och sista huset på gatan.
Kannebäck erbjuder den perfekta kombinationen av naturupplevelser nära stan - närhet till bad och promenadstigar. Mycket bra kommunikationer till Frölunda Torg och Göteborg centrum.
Välkommen att boka visning.
För mer information välkommen att kontakta Margaretha 0701-962702
Mäklare

Bilder
Fakta
- Antal Rum 9 rum varav sovrum 5 - 6
- Boarea /Biarea 103 kvm /173 kvm
- Tomtarea 515.5 kvm
Fakta om bostaden
Byggnad
Fastighet
Tomt information
Elförbrukning
Besiktning
Taxering
Taxering (lista)
| Värderingsenhet | Taxeringsvärde | Värdeår |
|---|---|---|
| Smahusbyggnad | 3 097 000 kr | 1980 |
| Smahusmark | 2 593 000 kr |
Energideklaration
Inskrivningar
Inteckningar
| Handlings- nummer | Datum | Belopp | notera |
|---|---|---|---|
| 12814 | 23-07-1980 | 336700 | - |
| 12815 | 23-07-1980 | 120200 | - |
| 54922 | 17-06-1985 | 100000 | - |
| 54923 | 17-06-1985 | 120000 | - |
| 84250 | 09-11-1988 | 100000 | - |
| 37929 | 24-05-1989 | 120000 | - |
| 18276 | 13-03-1991 | 135000 | - |
| 17847 | 27-06-2001 | 668100 | - |
| 17849 | 27-06-2001 | 500000 | - |
| 34723 | 30-12-2011 | 300000 | - |
| 2015-00462089:1 | 14-10-2015 | 520000 | - |
| 2015-00462089:2 | 14-10-2015 | 300000 | - |
| 2017-00111806:3 | 17-03-2017 | 1480000 | - |
















